Kancelář UA

Praha 7


Uhlík architekti
Jan Šorm
Petr Uhlík


rekonstrukce
2015


foto Jan Kuděj

© Jan Kuděj
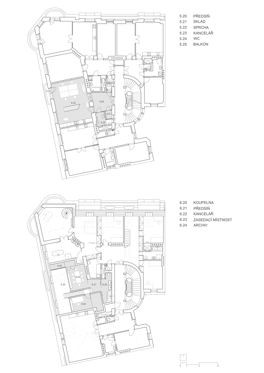
Dvoupodlažní prostor byl původně navržen k bydlení. Během stavby byl projekt změněn na vlastní kancelář ateliéru. Špatně využitelné prostory pod šikmou střechou horního patra byly přidány obytnému prostoru pod ním. Tím vznikl převýšený prostor, ve kterém jsou zavěšeny jednací místnost a pracovna. Do horního patra se vstupuje po subtilním ocelovém schodišti, které je vloženo mezi zavěšené místnosti.

© Jan Kuděj © Jan Kuděj © Jan Kuděj © Jan Kuděj © Jan Kuděj © Jan Kuděj