Penzion
pro seniory

Opava


Uhlík architekti
Petr Uhlík
Jan Šorm
Přemysl Jurák


soutěž
2012
odměna


© Jan Kuděj

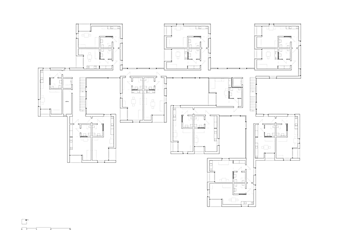
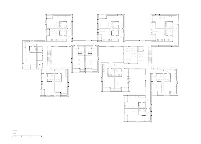
Navrhujeme na parcele 10 domů zhruba o rozměru 10x10x10 metrů. Domy zastavují parcelu jako šachovnici s vnitřními dvory. Hmoty kostek v šíři 10 metrů naznačují původní parcelaci pozemků při Hálkově ulice, podobně jako některé parcely zůstaly nezastavěny, mezi štíty do ulice pronikaly zahrady, také náš návrh má 2 dvory otevřené do prostoru Hálkovy ulice. Sousední nárožní parcela 185/2 je šancí, jak navázat na původní zástavbu Kateřinek včetně památkově chráněného funkcionalistického domu. Nejde nám o nápodobu původního zastavění, inspiruje nás pouze k podobnému prostorovému zážitku: úzké parcely zastavěné i do hloubky drobnými objekty, posuny domů vůči sobě, vznikající drobné dvory jako jedinečné intimní situace sdílených prostor. Malé a přívětivé měřítko. Nosné motivy pro sdílení společného domu pro 50 seniorů. Toto prostorové uspořádání vytvoří svůj vlastní svět směrem dovnitř do parcely, aby obyvatelé nebyli odkázáni na plánovaný nešťastný prostor vnitrobloku.

© Jan Kuděj © Jan Kuděj © Jan Kuděj © Jan Kuděj © Jan Kuděj © Jan Kuděj © Jan Kuděj © Jan Kuděj © Jan Kuděj © Jan Kuděj © Jan Kuděj © Jan Kuděj